Panoramica
Descrizione
La Casa Rossa è un casale di antiche origini, posto sulle alture che dominano il borgo di Montemagno, nel comune di Calci, in Toscana. Montemagno ha origini molto antiche ed è conosciuto per aver dato i natali, nell’ XI secolo, a papa Eugenio III. La proprietà si raggiunge percorrendo la strada centrale che, attraversato il borgo abitato, diventa un percorso sterrato che affianca antiche olivete ben tenute.
Il proprietario, con una visione illuminata, acquistò il casale abbandonato circa 20 anni fa per farne la propria dimora, affrontando un recupero edilizio durato anni. Il suo desiderio era quello di creare un luogo per una famiglia numerosa, dove lo stile classico dei casali toscani più autentici incontrasse linee moderne e pulite, con l’idea di garantire anche autosufficienza energetica. Ecco allora la scelta di prediligere tinte a calce, che con un velo elegante di bianco perla coprono le pietre faccia vista del piano terreno e i soffitti a travi e travicelli, o il pavimento in micro cemento di colore chiaro, che regala luce all’ambiente …e ancora i bagni realizzati in tadelakt, rivestimento naturale tipico degli hammam marocchini.
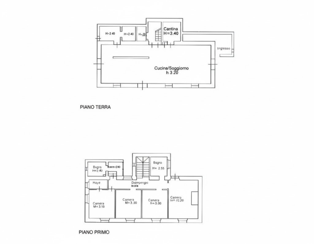
Il casale, già civile abitazione, è posto su due piani fuori terra e dispone di una superficie di 240 mq: il piano terreno, aperto sul giardino grazie a due ingressi principali sui lati opposti, offre una generosa zona giorno open space di 127 mq, dove la cucina è stata “ ben nascosta” da una semplice ed elegante quinta. A servizio di questo piano è stata ricavata una grande dispensa, un bagno spazioso, un locale lavanderia, a cui si accede sia dall’interno che da un terzo ingresso, e un secondo bagno.
Una moderna scale con parapetti in vetro conduce al piano primo, dove si incontrano sul lato sinistro lo studio, una grande camera con accesso indipendente, dove è ancora visibile l’ antico focarile, tre ulteriori camere, di cui una con bagno en suite e infine il quarto bagno con vasca semi-interrata e parete ineramente finestrata aperta sul cortile interno.
Il resede esterno di 400 mq è direttamente comunicante con l’abitazione ed è costituito da prato arricchito con varie essenze floreali tipiche del Monte Pisano: spazi godibili grazie anche alla presenza di un patio ombreggiato e una piscina fuori terra.
La parte agricola, di circa 4500 mq, ospita 250 piante di ulivo ed è interamente delimitata da muri realizzati con l’antica tecnica a secco e da recinzione in rete.
Gli impianti presenti sono degni di nota, infatti la struttura è servita da :
– impianto fotovoltaico costituito da n°1 generatore composto da n°40 moduli fotovoltaici e da n°1 inverter.
– impianto a gas gpl dotato di una caldaia a condensazione ad alta efficienza energetica e con capienti accumuli d’acqua preriscaldati attraverso una resistenza elettrica, alimentata dai pannelli fotovoltaici .
– termo camino di design nel soggiorno che contribuisce anch’esso al riscaldamento dell’acqua per uso sanitario e riscaldamento.
– caldaia a pellet .
La vista panoramica spazia dai graziosi borghi della Valgraziosa, sovrastati dall’antica rocca della Verruca, fino a raggiungere il mare.
Copyright Pizzi Real Estate di Aldo Pizzi



